£270,000
Thirlmere Avenue, Ashton-under-Lyne, Greater Manchester, OL7 9HN
3 Bedrooms
1 Bathrooms
Off Road Parking, Single Garage
Description
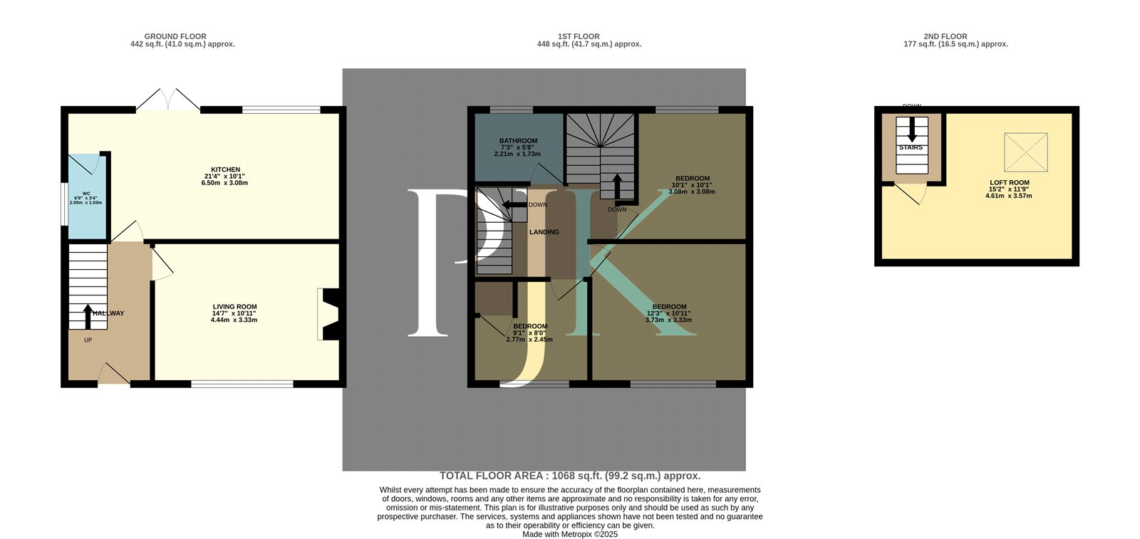
Floor Plans
EPC
Gallery
Video
Key Features
- Substantial plot with large driveway and expansive rear garden
- Bright living room with feature fireplace
- Generous open plan kitchen and dining area spanning the width of the property
- Three well-proportioned bedrooms and family bathroom
- Versatile loft space ideal for home office or future development.
- Excellent location close to schools, amenities and transport links
Full Property Description
The accommodation begins with a large and welcoming entrance hallway leading to a bright and spacious living room with an attractive feature fireplace. To the rear, a generous open plan kitchen and dining area spans the width of the property, fitted with matching wall and base units, quality work surfaces, and ample space for free-standing dining furniture — the perfect setting for family life and entertaining. A convenient downstairs WC completes the ground floor.
To the first floor are three well-proportioned bedrooms, including two comfortable doubles and a further single room, all served by a three-piece family bathroom. Stairs continue up to a versatile loft space with skylight, providing the ideal opportunity for use as a home office, playroom, or potential future conversion.
Externally, the property boasts excellent kerb appeal, with a wide driveway to the front offering ample parking. To the rear is a superb garden featuring a covered patio area, ideal for outdoor furniture, leading onto a large lawn that provides plenty of room for children to play or for further landscaping.
Interest in this property?
Seen something you like? Hit the button below to take the next step towards your dream home
Map and Streetview
































