Let Agreed
REF: CCL251385
£2,080 pcm
Wilmslow Road, Withington, Manchester, M20 3BW
4 Bedrooms
2 Bathrooms
Description
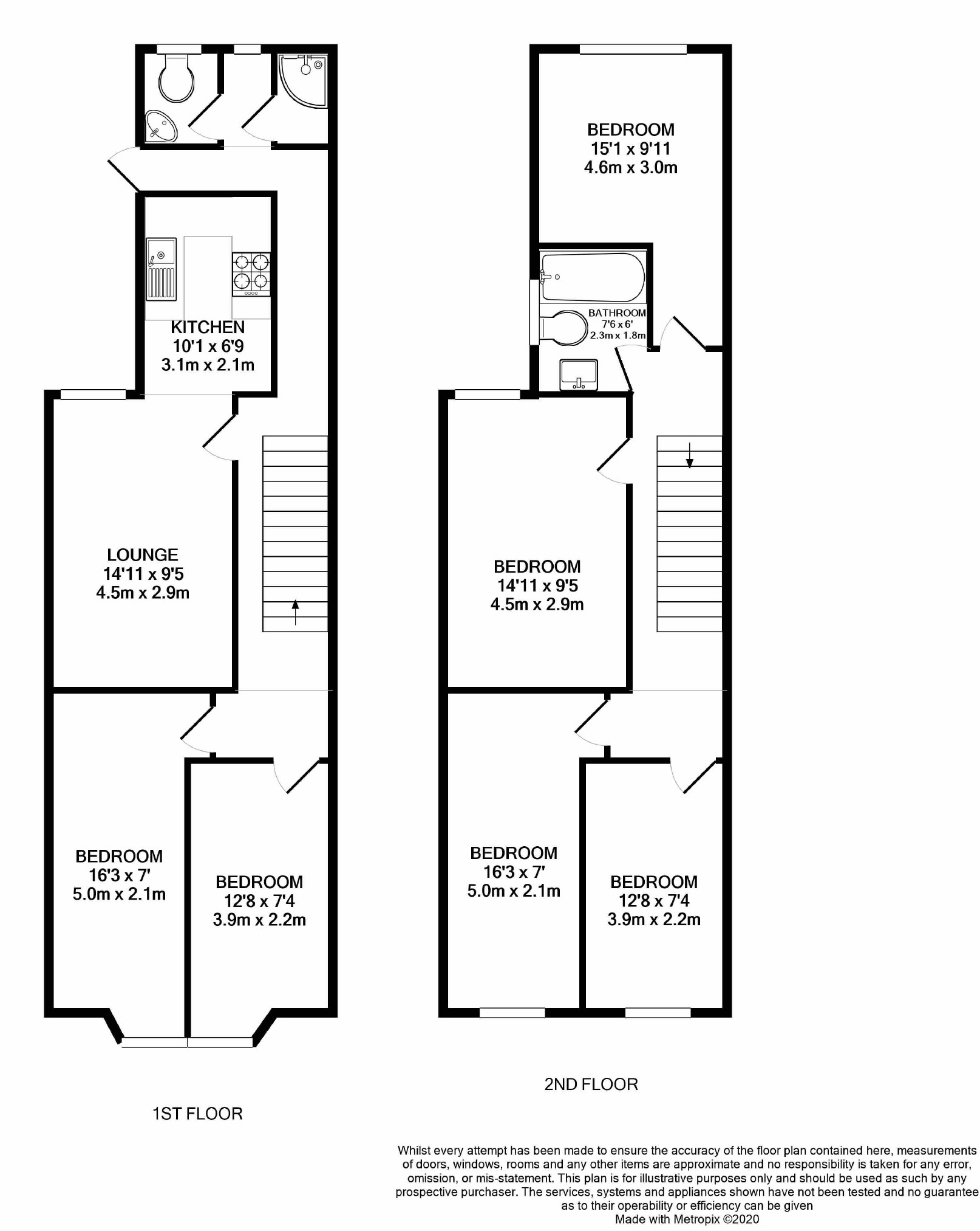
Floor Plans
EPC
Gallery
Key Features
- STUDENT PROPERTY AVAILABLE FOR ACADEMIC YEAR 2026/2027
- **£120.00 PER PERSON PER WEEK**
- Duplex Apartment
- Four Bedrooms
- Great location
- Large lounge
- Modern kitchen
- Next to a bus stop
- Secure entry
- Deposit 5 weeks rent
Full Property Description
Room Details
Interest in this property?
Seen something you like? Hit the button below to take the next step towards your dream home
Map and Streetview


















